LOGEMENTS
98 logements collectifs à villepinte
Ressource : Garde-corps, palissades en bois.
Usage : 100% 100% des logements possèdent une « pièce » extérieure sous forme de balcon ou de terrasse. Une terrasse collective partagée.
Le projet concerne la réalisation d’une opération de 98 logements collectifs dans la ZAC de la Pépinière à Villepinte. Cet ensemble participe à structurer le paysage urbain en créant le caractère résidentiel attendu sur une voie nouvelle.
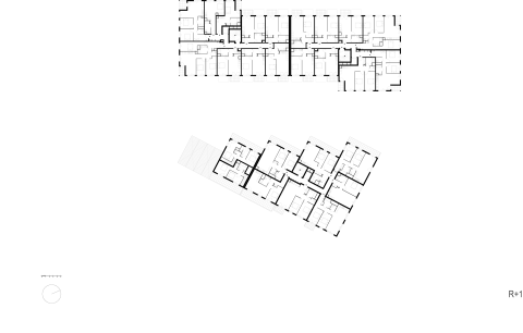
Le programme se développe sur deux volumes, dissociés en apparence, mais partageant en sous-sol un plateau de parking résidentiel.
Le premier volume en R+3+attique se caractérise comme un vrai bâtiment de logement collectif. Il se positionne à l’alignement sur la nouvelle rue et présente un retrait de 70% de sa façade afin d’organiser un espace de transition pour les parties du programme situées en rez-de-chaussée.
Le second volume, placé sur la limite Sud-Est du lot, propose une typologie intermédiaire. Un épannelage croissant allant du rez-de-chaussée au R+2+attique, permet de créer une transition avec le tissu urbain existant.
Tous les programmes de logements placés en rez-de-chaussée bénéficient d’un traitement du pied d’immeuble en jardins privatifs. D’une autre manière, tous les volumes constituant un couronnement sont traités comme des attiques, avec un retrait permettant l’aménagement de terrasses.
100 % des logements bénéficient d’un espace extérieur (balcon ou loggia) suffisant large et profond pour permettre un usage. Un rangement est systématiquement associé à cet espace.
infos
- architecte
- bfv
- lieu
-
14 boulevard de la Pépinière à Villepinte (93)
Grand Paris - description
- 98 logements collectifs
- maître d’ouvrage
- Bouygues immobilier
- surface
- 5657 m² sdp
- coût
- 9 M€ ht
- calendrier
- conception
livraison - équipe
Bourgois (BET structure) ;
ELEMENTS Ingénierie (BET fluides / thermique) ;
Audic (BET VRD)Chef de projet :
Charles Ducerisier- performances
rt 2012-10%
- matière
- programme
- environnement