comme chez soi
logements à épinay-sur-seine
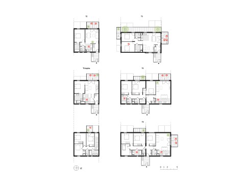
Le projet est une opération de logements en accession sociale dans le cadre d’un programme ANRU du quartier de la Source à Epinay Sur Seine. La CAPS, société coopérative de productions HLM a pour objectif de permettre aux ménages aux ressources modestes et locataires des logements sociaux des huit villes de la communauté d’agglomération Plaine Commune de devenir propriétaires d’un logement de qualité à un prix raisonnable et plafonné.
Il s’agit de dessiner des logements pour des personnes qui généralement souhaitent acheter pour la première fois et dont l’histoire familiale est liée à celle du logement social en Ile de France. Pour séduire ces personnes, nous devons donc leur proposer un logement qui diffère considérablement de ce qu’ils ont pu connaître précédemment (grande compacité, répétitivité, parties communes étroites et peu conviviales, salles d’eau généralement sans éclairage naturel, peu ou pas d’espace extérieur, peu d’espace intérieur (double hauteur ou étage), architecture générale raide et peu variée) en construisant des logements généreux dans leur architecture et raisonnable dans leur prix.
infos
- architecte
- jba
- lieu
-
Epinay sur Seine (93)
- description
- 37 logements en accession sociale (concours lauréat)
- maître d’ouvrage
- CAPS
- surface
- 2540 m² sdp
- coût
- 4.4 M€ ht
- calendrier
- conception
- équipe
Jean Bocabeille Architecte ;
TALBOT (Economiste) ;
WOR (Fluides) ;
EVP (Structure) ;
PLAN02 (HQE)- performances
RT2012
- matière
- programme
- environnement








