PROGRAMME MIXTE
111 logements + une école maternelle, issy-les-moulineaux (92)
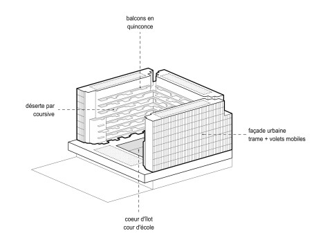
Ressource : Structure mixte bois béton. Poteaux poutres bois avec dalles béton.
Usage : Superposition de deux programmes. 100% des logements desservis par coursives sont traversants et possèdent une « pièce » extérieure sous forme de balcon.
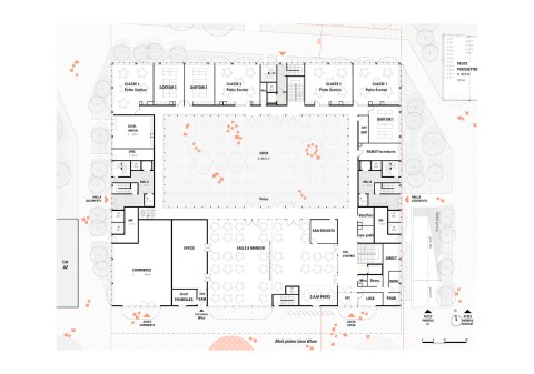
Notre projet, « figure en U », apporte une réponse singulière aux futurs résidents et offre un cadre de vie inédit basé sur un mode d’habiter plus participatif. Cette proposition permet de réaliser des logements au confort de vie optimum, tout en installant une école en son centre.
Afin de résoudre concomitamment les deux problématiques de l’école située en rdc (bruit + chute d’objets dans la cour), nous proposons d’orienter toutes les pièces de vie des logements vers l’extérieur de la parcelle, et donc de mettre le maximum de distance entre les pièces de vie des résidents et les cours d’école qui se trouvent au centre de la figure.
La distribution par coursives extérieures permet à la totalité des logements de bénéficier d’espaces traversants et de pièces d’eau éclairées et ventilées naturellement. Les espaces extérieurs privés se trouvent de l’autre côté de la coursive. Celle-ci devient un lieu partagé permettant de véritables échanges entre voisins.
infos
- architecte
- jba
- lieu
-
ISSY LES MOULINEAUX (92)
Grand Paris - description
- 111 logements + une école maternelle (concours)
- maître d’ouvrage
- OPH SEINE OUEST HABITAT
- surface
- 10756 m² sdp
- coût
- 23.7 M€ ht
- calendrier
- conception
- équipe
Jean Bocabeille Architecte (mandataire) ;
KHEPHREN (structure) ;
FRANCK BOUTTE (thermique, fluides et HQE) ;
MAZET (économie) ;
Vivie (Acoustique) ;Images : Felipe Carrara
- performances
BIOSOURCE 3, EFFINERGIE+, HQE NF HABITAT 6*
- matière
- programme
- environnement


















