LOGEMENTS
101 logements, ilot kleber, pantin (93)
Réemploi : Façades en brique de réemploi
Ressource : Isolant bio sourcés + béton CEMIIIB
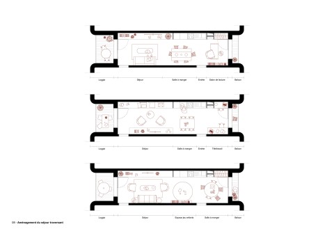
Usage : Grande pièce traversante comme espace partagé avec loggia profonde.
La volumétrie alternative au PLU définie par la Ville de Pantin propose 3 bâtiments orientés Est/Ouest formant une figure de peigne. Le subtil décalage de géométrie du bâtiment central permet de résoudre en partie le sujet du vis-à-vis entre bâtiments.
Notre proposition s’articule sur l’idée d’une famille de bâtiments dont les caractères sont semblables mais en raison du positionnement un peu différent lié aux inflexions du plan masse vont pouvoir fonctionner indépendamment et créer une diversité de situations pour les appartements.
Nous avons défini une typologie très singulière afin de répondre à la grande densité souhaitée. Dans le corps du bâtiment, une alternance de :
Bande d’espace partagé. Un espace majeur lumineux et traversant de 3,40m x 10,40m qui intègre une cuisine équipée le long de la paroi et deux espaces extérieurs à ses extrémités, dont une loggia profonde en façade Sud. La longueur de cet espace majeur permet d’aligner différentes fonctions en bénéficiant à toute heure de la journée de vues et de lumière naturelle.
Bande d’espaces intimes. Deux chambres avec rangements, l’une orientée Sud, l’autre au Nord, et une ou deux salles de bains au centre. Chaque chambre est éclairée naturellement par une fenêtre horizontale qui permet d’optimiser l’apport lumineux, tout en permettant des usages divers : bureau ou lit contre la fenêtre.
Cette bande peut se décomposer en deux entités distinctes afin de configurer les appartements, selon le principe suivant :
1 bande Séjour + ½ bande Chambres = un T2
1 bande Séjour + 1 bande Chambres = un T3
1 bande Séjour + 1½ bande Chambres = un T4
Ce principe permet de faire évoluer la granulométrie des appartements dans le temps.
Du point de vue constructif, nous proposons des façades porteuses avec une stricte superposition sur les structures du parking, une isolation par l’extérieur avec isolant bio sourcé et une vêture en brique de réemploi.
infos
- architecte
- bfv
- lieu
-
Grand Paris - description
- 101 logements
- maître d’ouvrage
- Kaufman & Broad
- surface
- 6800 m² sdp
- coût
- 12.5 M€ ht
- calendrier
- conception
- équipe
BFV architectes (Mandataires)
NOVAM BET TCE
ITAC Acoustique- performances
RE 2020 – 20%, NF HABITAT HQE 9 étoiles, Label Bio sourcé Niveau 2
- matière
- programme
- environnement

















