LOGEMENTS
résidence étudiante de 150 chambres, 32 logements en accession, pierrefitte-sur-seine (93)
Réemploi : 1 000 m2 de façade en brique de réemploi
Ressource : Structure bois des coursives.
Usage : Distribution par coursives extérieures pour les deux programmes. 100% des logements traversants. Deux configurations possibles pour les T3 au choix des acquéreurs.
Composition
Une combinaison de deux types d’architectures distinctes qui viennent dialoguer pour former un ensemble cohérent, homogène et conciliant avec son environnement. Une architecture massive et maçonnée, sous la forme de corps de bâtiments très simples et économes : des parallélépipèdes surmontés de toitures à deux pentes d’angles égaux dans le sens de la longueur. Une architecture légère et aérienne, sous la forme de structures de charpente (poteaux, poutres) pour les espaces extérieurs : un dispositif réticulé fait d’éléments fins articulés, associant le bois, le métal et la végétation grimpante.
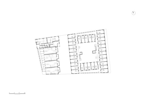
Distribution par coursives extérieures
La résidence étudiante s’organise sur quatre corps de bâtiments maçonnés autour d’un patio extérieur central arboré en pleine terre. Une distribution par de larges coursives extérieurs pour réaliser des logements traversants, des salles d’eaux aérées et éclairées naturellement et permettre un usage collectif ; lieux de passages et de rencontres entre étudiant, à l’image d’un espace public. Les logements en accession sont également desservis par de larges coursives extérieures qui donnent accès à un espace extérieur privé avant de pénétrer dans des logements traversants. Les logements permettent deux types d’usages : soit une grande pièce de vie en longueur (cuisine/séjour) traversante, soit une grande pièce de vie en largueur et des chambres sur jardin.
Réemploi de briques
Un traitement architectural sobre et économe et un choix de matériau limité à deux principalement. Notre intention est de faire « vivre » cette architecture par un matériau vivant : la végétation grimpante qui donnera un caractère très fort aux bâtiments. Les volumes maçonnés sont conçus comme des blocs autonomes avec une descente de charges rectilignes et des gaines verticales toutes hauteur. Nous proposons un complexe de façade composé d’un voile de béton percé au droit des baies, un isolant par l’extérieur et une vêture de brique de réemploi. 1 000 m2 de façade qui permettent d’économiser 50 tonnes eq.CO². En opposition à l’architecture massive des bâtiments en brique, nous avons dessiné une architecture légère faite d’une structure régulière de poteaux et de poutres en assemblage moisée réalisée en lamellé collé de bois.
infos
- architecte
- bfv
- lieu
-
Zac Briais Pasteur à Pierrefitte-sur-Seine (93)
Grand Paris - description
- Résidence étudiante de 150 chambres et 32 logements en accession
- maître d’ouvrage
- Bouygues Immobilier
- surface
- 5540 m² sdp
- coût
- 9.2 M€ ht
- calendrier
- conception
livraison - équipe
BFV ARCHITECTES (mandataires) ;
COTEC (TCE) ;
BTP CONSULTANT (Bureau de contrôle) ;
CARDONNEL (AMO environnement) ;
RG INGENIERIE (Acoustique-thermique)Chef de projet : Solweig Doat
Images : Felipe Carrara- performances
E2C1, HQE, RT2012 - 20%.
- photographes
David Boureau
- matière
- programme
- environnement





















