BUREAUX
siège social de paris 2024, saint-denis (93)
Réemploi : Réemploi de dalles de faux planchers et de cloisons démontables.
Ressource : Structure mixte bois béton. Poteaux poutres dalles bois avec noyau béton.
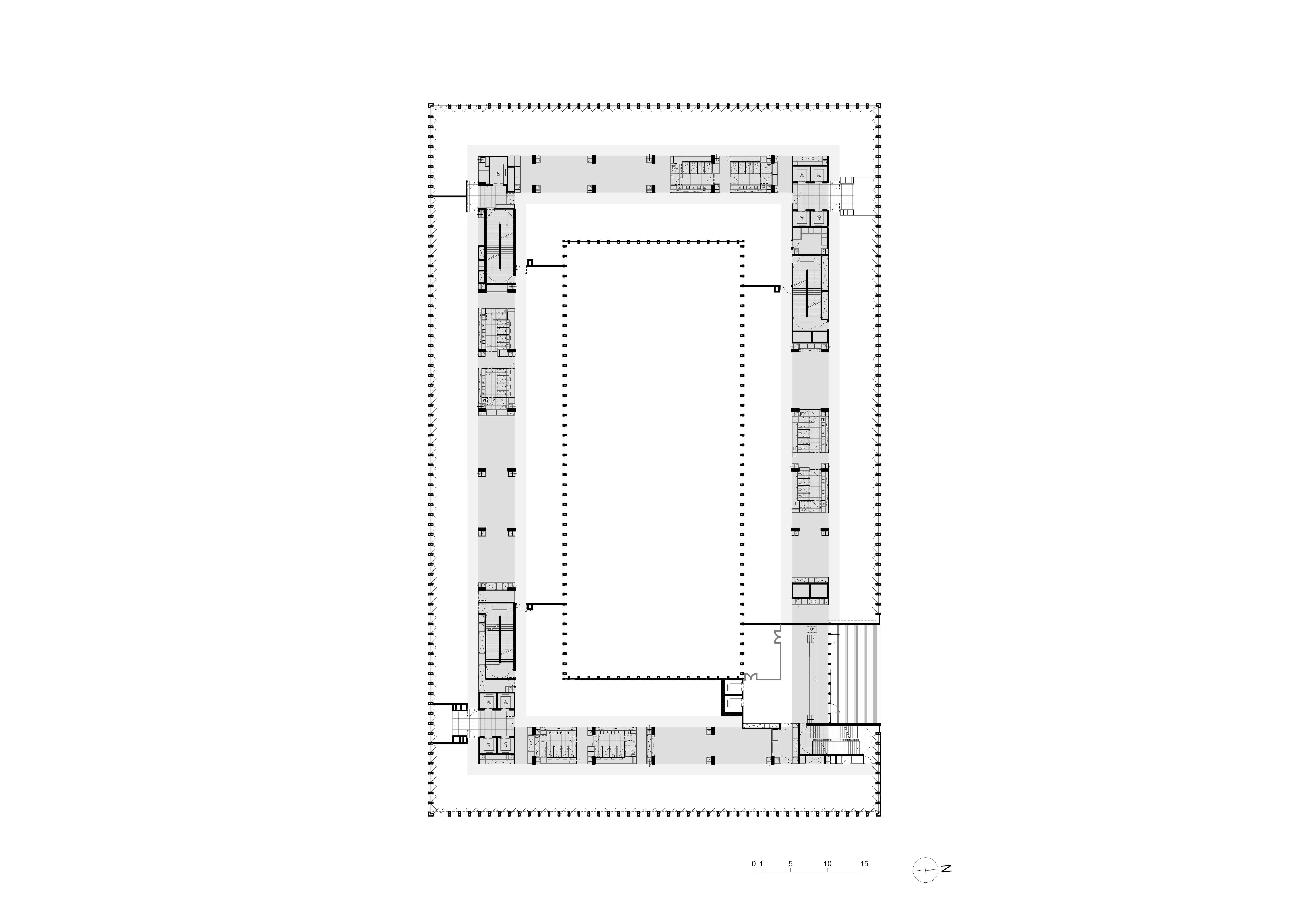
Usage : Atrium central de 1 400 m2 conçu comme une place + espace d’exposition. Grande terrasse avec potager urbain. Fenêtres 100% ouvrantes.
Pulse est un immeuble de bureaux de 30 000 m² et sept étages. Il s’organise autour d’un large atrium d’une dimension exceptionnelle de 24 x 58 m et 30 m de hauteur, soit 1 400 m² ; véritable nef couverte d’une verrière où se révèle la présence du bois.
Cet atrium fonctionne comme une espace tampon et régule la température intérieure des espaces tertiaires. La structure de l’ensemble est mixte : noyaux en béton, poteaux / poutres / planchers en CLT pour 6 000 m3 de bois. Le bois impose une rigueur constructive qui contraste avec sa chaleur naturelle et colore les lieux de travail, pensés comme de véritables espaces de vie. Du hall à l’atrium, en passant par les étages de bureaux, la présence du bois est la garantie d’une ambiance chaude, calme et sereine.
Des services dédiés au bien-être des salariés, dont trois espaces de restauration, sont situés en rez-de-chaussée autour de l’atrium. Des terrasses et un potager urbain (500 m²) alimentant la restauration sont à disposition au dernier niveau. En façade, la mosaïque, créée par une géométrie rigoureuse de baies régulières et toutes ouvrantes, s’interrompt au-dessus du hall d’entrée et révèle une grande terrasse plantée. Comme un trésor dans son coffret, cette architecture de bois se revêt d’une gangue protectrice de lames d’aluminium de trois couleurs qui miroitent au soleil.
A tout cela s'ajoute le réemploi des dalles de faux plancher pour 30 000 m² (Mobius réemploi) et le réemploi de 30% des cloisons démontables de l'aménagement intérieur réalisé pour accueillir Paris 2024.
Nommé à l’Équerre d’argent 2019
infos
- architecte
- bfv
- lieu
-
place du Front Populaire, Saint-denis (93)
Grand Paris - description
- Immeuble de bureaux en structure bois + restaurants
- maître d’ouvrage
- Icade Tertial
- surface
- 29450 m² sdp
- coût
- 65.7 M€ ht
- calendrier
- conception
livraison - équipe
ARTELIA (TCE)
BARTHÈS (Bois)
ARCORA (Façades)
AVLS (Acoustique)
SPOOMS (Cuisine)
Bellastock (conseil réemploi)Chef de projet :
Nikos Georgoussis
Suivi de chantier :
Pierre Swaenpoel- performances
HQE Excellent
BREEAM Very Good
BBCA Excellent- photographes
Frédéric Delangle
Léa Denièle- matière
- programme
- environnement