LOGEMENTS
55 logements, zac des tartres, stains (93)
Réemploi : Façades en brique de réemploi.
Ressource : Façades ossature bois avec isolation en paille hachée.
Usage : 100% des logements possèdent une « pièce » extérieure sous forme de loggia ou de terrasse. Maisons jumelées superposées avec un espace en double hauteur.
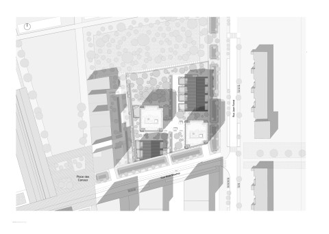
La ZAC des Tartres à Stains est une opération urbaine engagée depuis un certain temps (création en 2011). Elle s’articule autour d’un parc de 15 Ha et l’ambition des urbanistes réside dans la conservation de la mémoire agricole de ce territoire.
Notre proposition s’articule sur une réinterprétation de deux lignes en deux fois deux plots alignés, de nature et de physionomie différentes, dont l’architecture évoque l’imaginaire lié à l’histoire maraichère du site :
Les plots verticaux constitués par des logements collectifs, dont l’architecture identifiable évoque des « silos ».
Les plots horizontaux constitués par des logements intermédiaires, dont l’architecture identifiable évoque des « fermes ».
Nous proposons un alignement respectivement sur les deux « lignes » du lot d’un plot vertical et d’un plot horizontal. Cette disposition en quinconce a le mérite de permettre à la fois le désir de vues dégagées pour les plots verticaux sans vis-à-vis et l’identification des typologies entre appartements en collectifs et maisons de villes jumelées et superposées.
Les deux immeubles collectifs proposent des halls non conventionnels. Dans la mesure où, les résidents qui habitent dans les maisons de ville bénéficient d’un accès direct vers leurs logements, nous avons souhaité retrouver ce principe pour les habitants des logements collectifs. Les halls se présentent comme des espaces extérieurs couverts mais non étanchés. Les résidents accèdent à ces halls en ne franchissant qu’une seule porte.
Dans la continuité de notre parti volumétrique, nous optons pour un traitement architectural sobre et économe et un choix de matériau limité à deux principalement :
Mélèze pour la vêture des FOB des corps des Silos
Brique de réemploi pour la vêture des socles des Silos et pour les Fermes
infos
- architecte
- bfv
- lieu
-
Stains, lot 28S, ZAC des Tartres
Grand Paris - description
- 55 logements, zac des tartres, stains (93)
- maître d’ouvrage
- CFD Immobilier
- surface
- 3690 m² sdp
- coût
- 6.8 M€ ht
- calendrier
- conception
- équipe
BFV architectes (Mandataires)
- performances
RE 2020 – 20%, NF HABITAT HQE 9 étoiles, Label Bio sourcé Niveau 2
- matière
- programme
- environnement










