LOGEMENTS
67 logements, zac empalot, toulouse (31)
Usage : 100% des logements possèdent une « pièce » extérieure sous forme de loggia ou de terrasse. Maisons jumelées superposées avec un espace en double hauteur
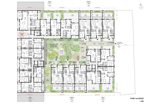
L’opération comporte 67 logements offrant des typologies et des modes d’habiter différents :
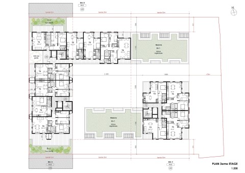
6 maisons à patio au RDC ; 22 logements en immeuble collectif sur la cage A dont 7 traversants et 5 appartements d’angle ; 16 logements sur la cage C, tous appartements d’angles avec loggias ; enfin, 23 logements sur la cage C, desservis par des coursives extérieures dont 13 traversants et 8 appartements d’angles et 2 maisons duplex avec de larges terrasses sur le toit.
La première qualité architecturale du projet réside dans sa volumétrie ; fruit du travail souhaité par les urbanistes sur des typologies et des modes d’habiter variés, ce qui a pour conséquence d’offrir une volumétrie complexe, faite de découpage en plan, d’épannelage en toiture, d’échelles différentes. Nous proposons en contrepartie un traitement architectural sobre et cohérent afin de favoriser ce caractère volumétrique.
Nous répondons au souhait exprimé sur une organisation en trois strates :
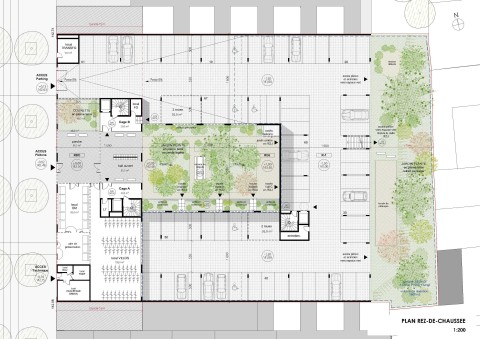
Habiter le Sol : nous proposons un RDC très ouvert sur la rue avec un accès de plain-pied pour les résidents à travers un espace extérieur couvert, formant porche ou hall extérieur, donnant accès à deux halls vitrés (A et B), puis à un espace extérieur jardin, légèrement en pente pour accéder au hall C du plot autonome ou aux maisons de villes légèrement surélevées par rapport au jardin. Les voitures accèdent à un parking d’un seul tenant situé en demi-niveau inférieur par rapport à la rue. Le parking est éclairé et aéré naturellement. Les services collectifs : boite aux lettres, local OM et locaux vélos sont attenants au porche, sur le chemin d’usage des résidents. Ils sont couverts, protégés par de simples grilles et donc éclairés et aérés naturellement. Les maisons de villes, situées au-dessus du parking sont conçues comme des maisons à patio, favorisant l’intimité des espaces de vie intérieurs mais aussi extérieurs, avec des accès indépendants et individualisés. Sur la rue, un accès direct au poste de transformation électrique et à un ensemble de locaux techniques : local eau, local TGBT et local Chauffage urbain.
Habiter le Corps : en façade Ouest, soit sur la rue Jean Moulin, nous avons opté pour de larges loggias profondes, horizontales et régulières avec une unité de matériau en façade périmétrique (béton brut architectonique matricé, lazuré blanc) et des enduits colorés (ton ocre) en fond de loggias. Ce principe se retourne en façade Sud au-dessus du socle formé par les 3 premiers niveaux en mitoyenneté. En façade sur cour (Est et Sud), nous alternons des coursives extérieures au Sud et des loggias à l’Est.
Habiter le Ciel : sur les niveaux hauts de chaque volume, nous proposons d’ouvrir les loggias plein ciel en conservant une protection solaire réalisée par des pergolas en acier. Des jardinières en béton plantées et des toitures végétalisées apporteront une dimension paysagère et une présence végétale. Les plantations s’associeront avec les volumes découpés pour offrir une silhouette élancée aux volumes bâtis.
infos
- architecte
- bfv
- lieu
-
Zac Empalot à Toulouse (31)
France - description
- 67 logements de typologies différentes
- maître d’ouvrage
- Spie Batignolles
- surface
- 4600 m² sdp
- coût
- 7 M€ ht
- calendrier
- conception
- équipe
BFV Architectes
Chef de projet : Solweig Doat
Images : Felipe Carrara- performances
E2C1 ; Label E+C- niveau E2C1 (minimum) ; Certification NF HQE® Niveau M1 ; Certification Effinature
- matière
- programme
- environnement











