TRANSFORMATION RESTRUCTURATION
44 logements + activités, tours (37)
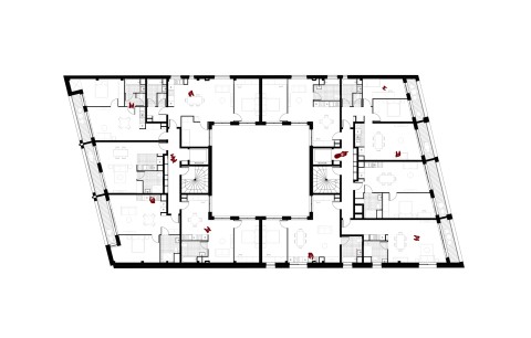
Réemploi : Restructuration d’un parking de 6 niveaux.
Usage : Logements autour d’un patio. Demi-niveaux et double hauteur.
Le parking, réalisé dans les années 30 par l’entreprise Citroën, se présente comme un vaste bâtiment unitaire et massif. Il présente une forte singularité en raison de sa taille et de l’écriture Art Déco de sa façade principale sur l’avenue de Grammont. Les grandes baies majorées par des hauteurs d’étage importantes ainsi que l’effet de corniche du couronnement donnent à ce bâtiment R+3 une dimension très singulière.
La transformation du bâtiment réside essentiellement dans la création d’un patio au centre du volume afin de permettre l’éclairement naturel des pièces à vivre des appartements. Le patio est installé à partir du R+1 ; de 80 cm à 120cm de terre sous la forme de talus viendront lui apporter une dimension paysagère. Certains logements en raison de la distribution en demi-niveaux du parking bénéficient de très belles hauteurs et de prises de vues et de lumière sur rue et sur patio.
Sur la façade principale, ainsi que sur la façade arrière, des loggias seront aménagées pour la création d’une nouvelle façade installée en retrait d’1 m du nu existant. Celles-ci permettront de recomposer des vues adaptées aux niveaux nouvellement créés ; ainsi que d’offrir aux résidents des espaces extérieurs d’agrément. Ces nouvelles façades seront traitées avec un revêtement bois visible depuis l’extérieur.
infos
- architecte
- bfv
- lieu
-
56 avenue de Grammont, Tours (37)
France - description
- transformation et restructuration d’un parking en 44 logements + activités, tours (37)
- maître d’ouvrage
- Nexity Héritage
- surface
- 3227 m² sdp
- coût
- nc
- calendrier
-
livraison prévue - équipe
BFV Architectes (mandataire)
Chef de projet : Vincent Chevalier
Images : Felipe Carrara- performances
e2c1, hqe, rt2012 - 20%
- programme