PICPUS
logements à paris 12°
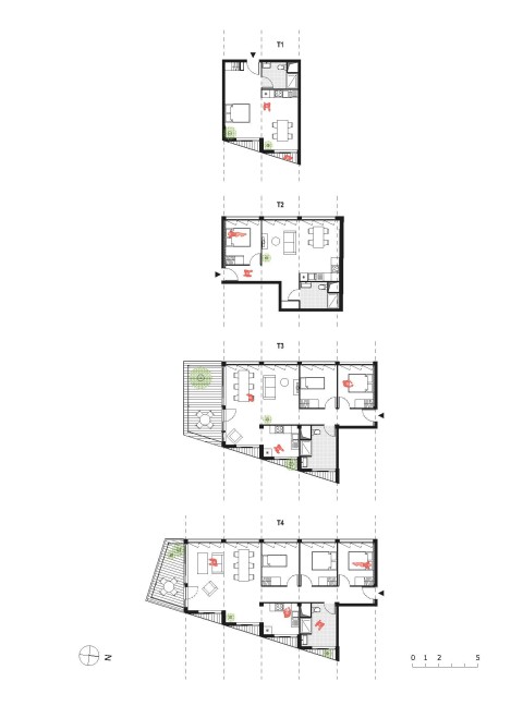
Ce projet démontre notre très forte volonté de transférer notre savoir-faire, éprouvé sur des opérations de tertiaire en construction bois, vers des opérations de logements. Ce petit bâtiment de 20 logements
s’installe sur une parcelle étroite parisienne. A la structure bois vient s’ajouter des briques de réemploi peintes pour des raisons de politique environnementale et de construction bas carbone. Il s’agit aussi de permettre une réalisation parfaite dans un temps maîtrisé. Cette opération nous a permis d’aborder les questions de sécurité incendie et d’acoustique sur des opérations de logements, sujet sensible pour lequel nous avons trouvé des solutions dans un contexte réglementaire en pleine évolution.
infos
- architect
- bfv
- place
-
9 bis-11 Boulevard de Picpus 75012
Paris - description
- 20 logements dont 13 Logements en accession et 7 sociaux
- client
- Privé
- surface
- nc
- cost
- nc
- calendar
- nc
- team
BFV ARCHITECTES
Images : Felipe Carrara
- performances
E3C2 ;
BBCA ;
Triple Zéro (zéro carbone, zéro déchets et zéro rejets)- texture
- program
- environment










