vues sur seine
logements à paris 5°
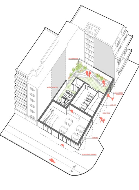
Pour répondre à l’hétérogénéité du site, nous avons souhaité donner au bâtiment une physionomie singulière et distincte de son environnement immédiat. Le projet se détache très légèrement de son voisin sur le quai de la Râpée et libère ainsi une faille au-dessus du RDC de 2m. Cette faille permet à la lumière naturelle de pénétrer jusqu’au fond de la parcelle à travers le dispositif des coursives de distribution des appartements. Cet apport de lumière est bienvenu pour l’immeuble haussmannien et sa courette qui donne sur la parcelle. Cette disposition permet également de donner de la qualité au cœur d’îlot qui constitue la séquence d’entrée de l’immeuble qui devient ainsi un petit espace paysagé. Enfin, pour répondre à l’extrême agressivité du site, le projet se présente comme une construction pleine, massive et lisse afin d’empêcher l’accroche des poussières liées à la pollution et de lutter contre la nuisance sonore.
infos
- architect
- jba
- place
-
Quai de la Râpée Paris, 12e
- description
- démolition / construction d’un ensemble de 14 logements sociaux et commerce en rez-de-chaussée (concours)
- client
- RIVP
- surface
- 1386 m² shab
- cost
- 2 M€ ht
- calendar
- design
- team
Jean Bocabeille Architecte ;
EVP (structure) ;
AXIO (économie) ;
ANTEA (démolition) ;
DELTA (Fluides) ;
PLAN02 (HQE) ;images : felipe carrara
- performances
Effinergie + / H&E profil A option Performance / Plan Climat Ville de Paris
- texture
- program
- environment













