EQUIPEMENT
médiathèque et école d’art, ile saint-denis (93)
Ressource : Extension et surélévation en structure bois.
Précieux et radical, le projet abrite deux équipements culturels : la médiathèque Elsa Triolet et le centre d’arts Frida Kahlo.
Dans un environnement peu lisible, il participe à la restructuration du centre-ville et articule avec souplesse les besoins de deux structures aux publics différents. Le projet est dessiné comme une « boîte à secrets ».
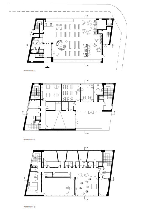
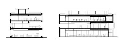
Au rez-de-chaussée, la médiathèque utilise tout le volume disponible. C’est un espace ouvert, clair, traversant, modulable et transformable. Au premier étage se situent l’accueil et l’administration de l’école des arts ainsi que la salle d’animation qui peut être partagée par les deux équipements. Les salles d’enseignement de l’école des arts se trouvent au second. La terrasse du R+1 est conçue comme une « place haute » : imaginée et rajoutée au programme par les architectes, elle peut accueillir de multiples usages et permet en outre de brasser les usagers des deux équipements. Elle permet également d’éclairer naturellement l’intérieur et souligne l’articulation des deux structures.
infos
- architecte
- fv
- lieu
-
1 ter, rue Mechin, Saint-Denis (93)
Grand Paris - description
- Démolition des bâtiments existants pour construire un bâtiment qui comprendra une médiathèque et des locaux culturels municipaux à L’Île-Saint-Denis (93).
- maître d’ouvrage
- COMMUNAUTÉ D'AGGLOMÉRATION PLAINE COMMUNE
- surface
- 1545 m² shon
- coût
- 3.3 M€ ht
- calendrier
- conception
livraison - équipe
FASSIO-VIAUD ARCHITECTES (Architectes associés)
DDA ARCHITECTES (Mandataire)BATISERF (structure)
FORGUE (Économiste)
LOUIS CHOULET (Fluides HQE)
STUDIO DAP (Acousticien)
BATISS (Sécurité incendie)- performances
NF bâtiments tertiaires / Démarche HQE / Effinergie
Construction BBC- photographes
Sergio Grazia
- matière
- environnement










