EQUIPEMENT
maison de la petite enfance à épinay-sous-sénart (91)
Ressource : Structure en murs à ossature bois.
Usage : Chaque espace intérieur dédié aux enfants possède un espace extérieur attenant de même taille.
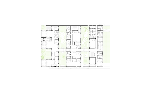
Une cité résidentielle typique des années 70 faite de tours et de barres judicieusement réparties et définissant des espaces libres et collectifs joliment paysagés. Le projet se présente comme une composition en contraste total avec son environnement immédiat constitué d’immeubles hauts ou longs réalisés en béton : le projet se développe sur un seul niveau en rez-de-chaussée, réalisé intégralement en structure bois : murs en ossature bois + charpente. Les bandes s’additionnent pour former un paysage unique et insolite.
Nous intercalons des pavillons formés de bandes perpendiculaires à la voie principale d’accès (orientation est-ouest) avec des jardins et patios en bande, abritant les différentes entités de programme.
infos
- architecte
- bp
- lieu
-
3 Rue d'Alsace Lorraine, Épinay-sous-Sénart (91)
Grand Paris - description
- Maison de la petite enfance
- maître d’ouvrage
- VILLE D’EPINAY-SOUS-SENART
- surface
- 960 m² shon
- coût
- 2 M€ ht
- calendrier
- conception
livraison - équipe
(BP) ARCHITECTURES, Jean Bocabeille & Ignacio Prego ;
EVP INGENIERIE (Structure)
DELTA FLUIDES (Fluides)
DELPORTE AUMOND LAIGNEAU (Economiste)
ACOUSTIQUE VIVIE & ASSOCIES (Acoustique)- performances
RT2012 / DEMARCHE HQE
- photographes
Luc Boegly
- matière
- programme
- environnement











