EQUIPEMENT
creche multi-accueil 99 places + creche familiale 40 places, paris 20°
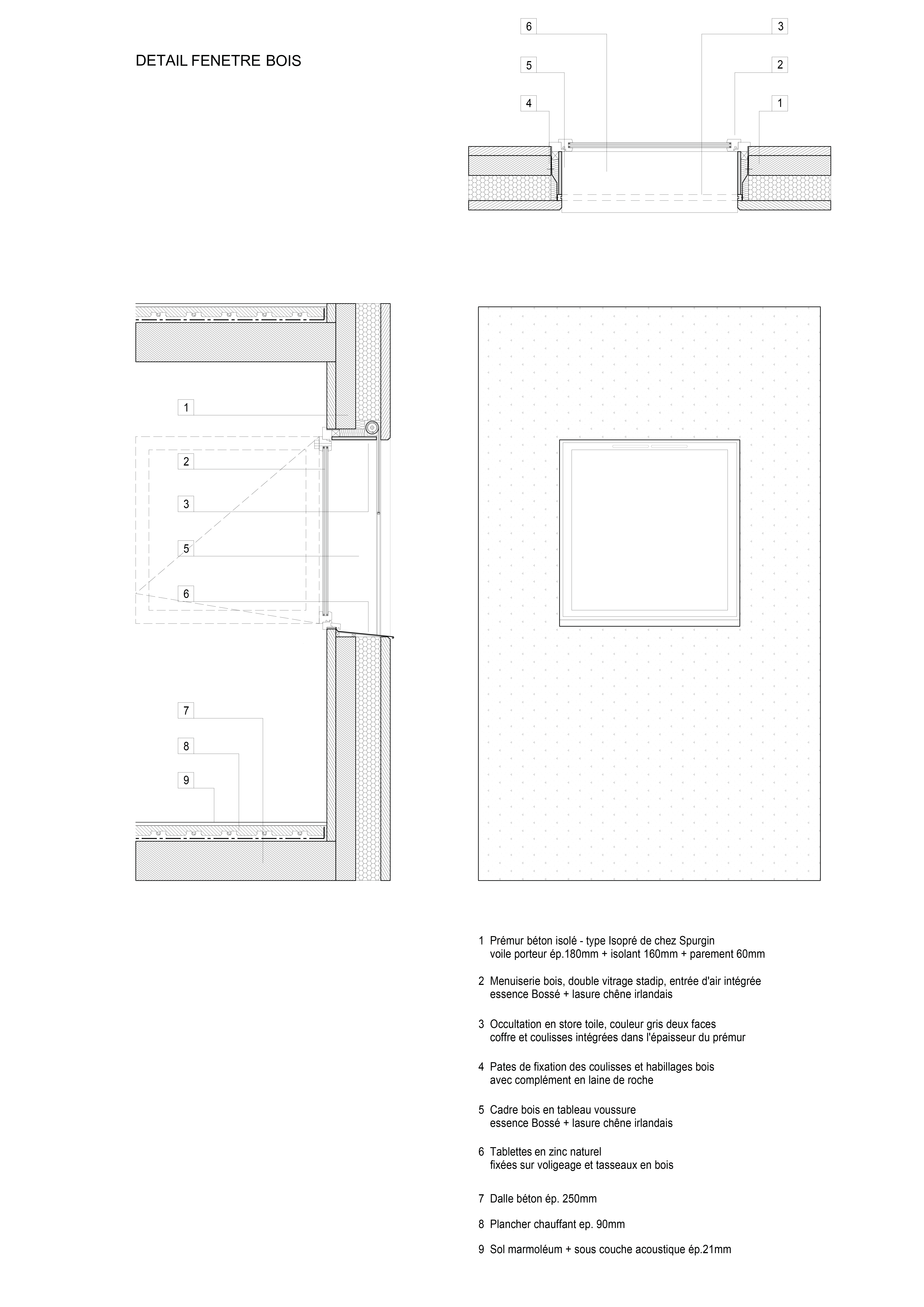
Réemploi : Recyclage des traverses de chêne issues de 640 portes palières récupérées sur un chantier à proximité.
Ressource : Cloisons intérieures en bois.
Usage : Grande terrasse sur le toit avec potager urbain.
La crèche Justice se veut exemplaire d’une démarche de sobriété. Faire plus avec moins. Plus de performance du point de vue environnemental, plus d’efficacité dans l’optimisation des surfaces, plus de maîtrise sur les coûts d’investissement et de maintenance.
Crèche multi accueil et familiale, la crèche Justice est une construction de 5 niveaux qui se superposent simplement pour intégrer le programme des salles dédiées aux enfants. A chaque niveau, un large balcon, orienté plein Sud, offre aux enfants un espace de jeu extérieur de plein pied avec leurs salles d’activités. Une résille, constituée de traverses en chêne massif issu du réemploi, forme une façade poreuse, à la fois ouverte sur son environnement et protectrice des rayons directs du soleil et des vues depuis l’espace public. Dans sa physionomie, la nature de sa façade et sa toiture plantée, le bâtiment constitue un élément paysager en lui-même : il est davantage un équipement dans un jardin qu’un équipement sur rue.
Le projet développe une vêture en chêne massif entièrement réalisée à l’aide de portes palières récupérées et transformées. Cette seconde peau offre au bâtiment l’image d’un ensemble cohérent, aéré, lumineux. En partant du constat que 74% des déchets sont issus du secteur du bâtiment, BFV Architectes a intégré un volet réemploi. En effet, la crèche est vêtue d’un assemblage en chêne massif faisant office de de brise-soleil et brise-vue. En plus de sa qualité esthétique, cette vêture raconte l’histoire du réemploi de la matière. Lors de la conception du projet, BFV Architectes a repéré un chantier de réhabilitation d’un ensemble de logements HBM à moins de 500m du site de la crèche. 600 portes palières en chêne massifs devaient être débarrassées en décharges publiques. BFV architectes a saisi l’occasion de s’emparer de cette matière afin de lui offrir une seconde vie.
infos
- architecte
- bfv
- lieu
-
21/23 rue de la Justice, Paris (20°)
Paris - description
- Crèche multi accueil 99 places et crèche familiale 40 places
- maître d’ouvrage
- VILLE DE PARIS
- surface
- 1198 m² sdp
- coût
- 4.3 M€ ht
- calendrier
- conception
livraison - équipe
Berim (tce + hqe)
Acoustique vivie (acoustique)
Boyer (entreprise générale)
Bellastock (moe/conseil/réemploi)
Laure Planchais (paysagiste)Chefs de projet :
Thibault Dezellus & Solweig Doat
Assistant de projet : Joséphine Delignies- performances
RT2012-20% / EFFINERGIE + / PLAN CLIMAT VILLE DE PARIS / HQE Performance Economie Circulaire
- photographes
Côme Bocabeille
- matière
- programme
- environnement
























