RESTRUCTURATION
centre de secours, aubervilliers (93)
Réemploi : Restructuration d’une caserne de pompier des années 70.
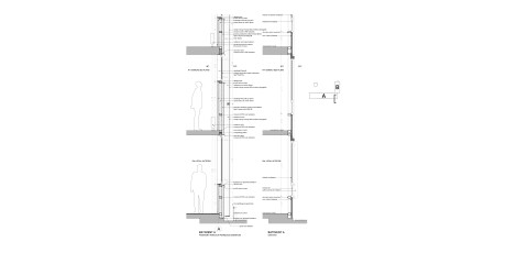
Le Centre de Secours d’Aubervilliers, bâti dans les années soixante-dix, se présente comme un bâtiment classique de cette époque. Une volumétrie intéressante avec une distinction nette d’un élément horizontal dédié à l’activité du centre (remise, chambres de garde et administration) et d’un élément vertical dédié aux logements. Outre l’amélioration du confort et de l’isolation thermique des bâtiments, la restructuration a permis de conforter cette différence en attribuant à chacun des deux volumes un matériau et une couleur pour le traitement des façades : verre sérigraphié et couleur rouge pour la remise, tôle aluminium en métal déployé et couleur grise pour les logements.
infos
- architecte
- bp
- lieu
-
47-49 rue de la Commune, Aubervilliers (93)
Grand Paris - description
- Restructuration caserne de pompier à aubervilliers (93)
- maître d’ouvrage
- PREFECTURE DE POLICE DE PARIS
- surface
- 1371 m² shon
- coût
- 1.5 M€ ht
- calendrier
- conception
livraison - équipe
(bp) architectures,
jean bocabeille & ignacio prego ;ALTERNET (Fluides) ;
BIIC (Structures) ;
BOUGON (Economiste)chef de projet : Solweig Doat
- performances
RT 2005 / FAÇADES LEGERES MUR RIDEAUX
- matière
- environnement












