PROGRAMME MIXTE
68 logements sociaux + ecole maternelle + theatre, zac seine rive gauche, paris, 13°
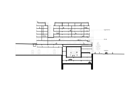
Usage : Trois programmes superposés.
L’opération incarne le double défi de réunir quatre fonctions - école, théâtre, logements et parking souterrain - sur une parcelle complexe et dans un impératif de mixité. En superposant les programmes, le projet articule le paysage de la « ville haute », nouvellement construite au-dessus des voies ferrées menant à la gare d’Austerlitz, et de la « ville basse », celle du sol naturel de la rue Chevaleret. La découpe très urbaine de sa silhouette, ses façades aux traitements variés (lisses dans l’alignement généré par la ZAC, plissées, pliées et fractionnées en cœur d’îlot) et la rigueur de son approche structurelle en font un objet singulier, dont la complexité n’obère ni la richesse d’écriture, ni la générosité des espaces publics et privés.
L’immeuble est un projet fédérateur, où l’architecture, le social et le culturel cohabitent ensemble au quotidien.
Nommé à l'Équerre d'argent 2012
infos
- architecte
- bp
- lieu
-
ZAC Seine Rive Gauche Lot M9C, Paris (13°)
Paris - description
- 68 logements sociaux + école maternelle + théâtre
- maître d’ouvrage
- I3F / RÉGIE IMMOBILIÈRE VILLE DE PARIS
- surface
- 12200 m² shon
- coût
- 25.5 M€ ht
- calendrier
- conception
livraison - équipe
(BP) ARCHITECTURES, Jean Bocabeille & Ignacio Prego
ARCADIS (TCE)
FABRICE BOUGON (Economiste)Chef de projet : Solweig Doat
- performances
BBC Effinergie / CERQUAL H&E Profil A / Plan Climat Ville de Paris / RT 2012
- photographes
Sergio grazia
Luc Boegly- matière
- programme
- environnement