RESTRUCTURATION EXTENSION
programme mixte, suresnes (92)
Réemploi : Restructuration d’un immeuble de bureaux des années 70.
Ressource : Extension et surélévation en structure bois.
Usage : Programmes avec espaces partagés pour les résidents et les riverains.
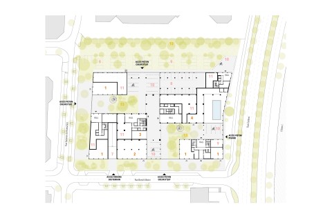
Cette opération présente une double particularité : à la fois un travail de transformation d’un bâti existant et un travail d’extension et surélévation. Le tout forme un ensemble cohérent d’un programme de 450 logements de standing et de services communs : conciergerie, fitness center, business center, piscine, sauna, spa, etc. Au bord de la Seine et faisant face au Bois de Boulogne, la situation est exceptionnelle. Le projet propose de surélever le bâtiment de bureaux existant de 4 à 5 niveaux, et de l’associer à la construction de 3 émergences culminant à R+16, générant un ensemble architectural audacieux. Les balcons virevoltants des émergences sont supports de végétation et apportent une double dimension paysagère et sculpturale au complexe.
L’immeuble de bureaux existant est un bâtiment iconique de la Ville ; archétype élégant d’une architecture brutaliste, il sera délesté de son socle ; ses superstructures seront conservées et transformées en une nouvelle figure urbaine hybride entre paysage et architecture.
infos
- architecte
- bfv
- lieu
-
33 Quai Gallieni, Suresnes (92)
Grand Paris - description
- Restructuration et Extension pour la réalisation de 450 logements, crèche, piscine, commerces, parking en sous-sol, et aérien à Suresnes (92)
- maître d’ouvrage
- LUPA FRANCE
- surface
- 32000 m² sdp
- coût
- 77 M€ ht
- calendrier
- conception
- équipe
WEST 8, Paysagiste
MAZET, Economie
CET BET, Fluides
ALTO, Environnement
KEPHREN, Structure
ACOUSTIQUE VIVIE, Acoustique
VERITAS , bureau de contrôleChef de projet : Flavie Frouin
images : Felipe Carrara- performances
E2C2, Certification WELL
- matière
- programme
- environnement























