EQUIPEMENT
gymnase de l’ecole sainte genevieve a versailles (78)
Ressource : Charpente bois.
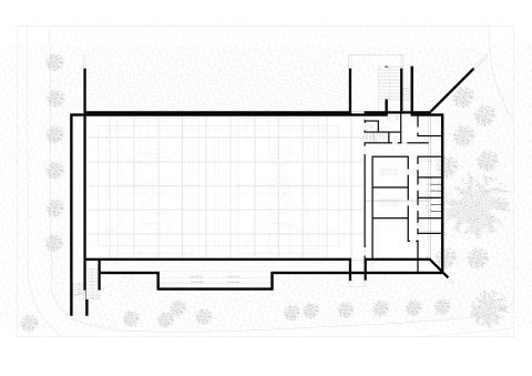
Nous avons imaginé, au regard du terrain existant principalement constitué de remblais, d’enterrer le bâtiment en deux temps. En creusant de trois mètres d’abord puis en remblayant les flancs de 4 mètres paysagés révélant ainsi seulement 4 m ressentis d’une façade qui devrait en faire 11. Ce choix permet de réduire l’empreinte du projet global tant pour ce qui est de la surface bâtie, de la réutilisation des terres excavées ainsi que du coût de construction et de maintenance.
L’image résultante de cette approche est celle d’une ligne de verre semi-réfléchissant (selon les orientations) posée sur un talus planté ou non selon l’orientation des façades. Les façades très exposées sont particulièrement bien protégées par les rideaux d’arbre en été, mais elles recevront toutes la qualité de verre la plus adaptée à leur orientation. Architecture silencieuse, elle ne fait plus partie du « campus » Ginette comme une nouvelle architecture parmi les architectures de l’école, mais elle est partie intégrante du paysage de l’école.
infos
- architect
- bfv
- place
-
2 Rue de l'École des Postes, 78000 Versailles
Grand Paris - description
- Création d’un nouveau gymnase et aménagement du gymnase existant
- client
- Lycée privé Saint-Geneviève
- surface
- 2610 m² sdp
- cost
- 5.5 M€ ht
- calendar
- design
- team
BFV ARCHITECTES (Mandataire) ;
FLORENCE GUIN (Paysagiste) ;
BARTHES BE BOIS (Structure bois) ;
COTEC (Structure béton Fluides, thermique, HQE, économie VRD) ;
PHILIPPE BRIÈRE (OPC)Chef de projet : Charles Ducerisier
Images : Jean-Brice Viaud- texture
- program
- environment