RESTRUCTURATION TRANSFORMATION
logements, bureaux et fondation, lyon (69)
Réemploi : Restructuration d’un bâtiment industriel des années 1940
Le projet est une reconversion du bâtiment existant de l’ancienne chaufferie de l’Antiquaille, exemple remarquable de l’architecture rationaliste en béton du XXème siècle : simplicité des formes, lisibilité, structure évidente. Château de l’ingénierie des années 50, cette architecture de béton, fière de sa matière brute, décline de façon élégante ses échelles, de la plus importante à la plus petite section. Le béton se fait structure, modénature et menuiserie. Ce bâtiment s’ancre dans un sol extrêmement précieux : une voie Romaine, le cardo decumanus qui descendant du forum, gît sous ses fondations. Remplacé aujourd’hui par la ficelle, funiculaire qui permet aux touristes et habitants de grimper en haut de la colline.
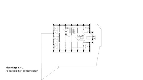
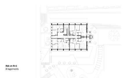
Le projet se propose de remplir le volume existant actuellement vide, par la réalisation de 8 logements et un dernier étage de bureau et fondation d'art, sur 4 niveaux.
Comment modifier sans dénaturer ? Comment développer un nouveau programme en rajoutant 3 niveaux de planchers sans dénaturer, ni alourdir le bâtiment ? Tout doit être léger : les planchers métalliques sont portés par les poteaux et suspendus aux portiques. Rien n’est modifié : ni l’implantation, ni la composition de la construction existante, à l’exception de la démolition du auvent et des éléments rapportés tardivement tels que l’ascenseur et l’escalier. C’est un travail de réinterprétation fine qui s’est mis en place pour ne pas perdre l’essence du bâtiment, ni devoir reconstituer les éléments manquants ou abîmés en béton contemporain. Le choix a été fait de les reconstituer en bois.
Tous les éléments structurels ainsi que les éléments de modénature abîmés ont été remplacés par des éléments en bois pré-grisé. De loin, le bâtiment conserve sa silhouette de dentelle grise, de plus près le promeneur distingue les parties contemporaines des parties anciennes. Le bois se révèle discrètement, tout en créant un patchwork contemporain aléatoire. Dans l’ombre de cette dentelle, la nouvelle façade de verre et métal noir laisse transparaître la nouvelle destination. La nuit, le bâtiment se fait lanterne.
infos
- architecte
- fv
- lieu
-
1 Rue de l'Antiquaille, Lyon (69)
France - description
- Transformation de l'ancienne chaufferie de l'Antiquaille en logements, bureaux & fondation d'art
- maître d’ouvrage
- SCI ONE
- surface
- 1209 m² sdp
- coût
- 2 M€ ht
- calendrier
- conception
livraison - équipe
BFV ARCHITECTES (mandataires) ;
AUM - Pierre Minassian, Edouard Minassian, Yves Duvernois, Benoit Thomas (Architecte d'opération & aménagement d’intérieur) ;
BATISERF (Structure) ;
BERGA (Fluides) ;
CHAMBARD (Économie) ;
ITINERAIRE BIS (Paysagiste)chef de projet : Jean-Marc René
- photographes
© Studio Erick Saillet
Jean-Brice Viaud- matière
- programme
- environnement






















